Looking for a hassle-free way to create a lease agreement for your rental property? You’re in luck! With our free printable 12-month lease agreement template, you can easily customize and download a legally binding document in just a few minutes.
Whether you’re a landlord or a tenant, having a written lease agreement is essential to protect both parties’ rights and responsibilities. Our template covers all the important details, including rent amount, lease term, security deposit, and rules for maintenance and repairs.
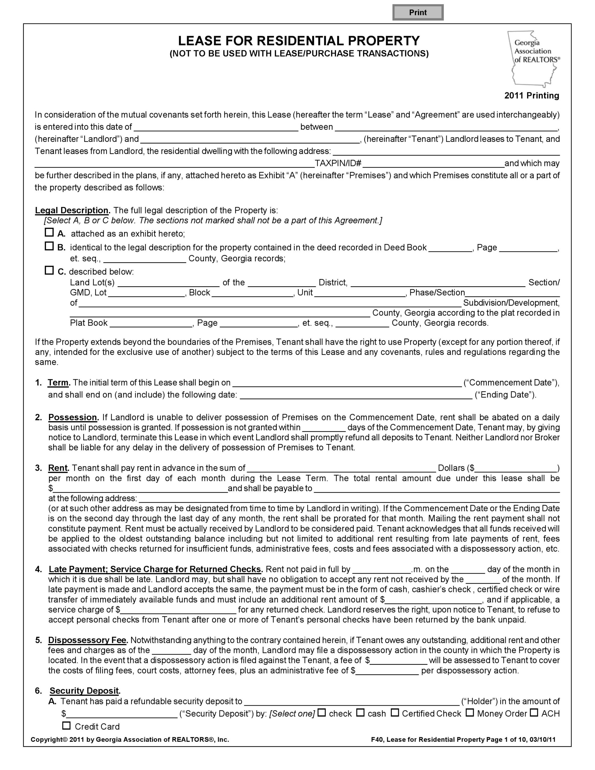
2025 – Free Printable 12 Month Lease Agreement
Free Printable 12 Month Lease Agreement
With our user-friendly template, you can fill in the blanks with your specific information and preferences. Simply download the document, review it with the other party, sign it, and keep a copy for your records. It’s that easy!
Having a written lease agreement helps prevent misunderstandings and disputes between landlords and tenants. By clearly outlining the terms and conditions of the rental agreement, both parties can refer back to the document if any issues arise during the tenancy.
Our free printable 12-month lease agreement template is designed to be straightforward and easy to use, even if you’re not familiar with legal jargon. You can rest assured that your rental agreement complies with local laws and regulations, giving you peace of mind throughout the lease term.
Don’t waste time and money on expensive legal fees or complicated paperwork. Download our free printable 12-month lease agreement template today and enjoy the convenience of having a professionally drafted document at your fingertips. Simplify the rental process and protect your rights with just a few clicks!
Take the stress out of renting your property by using our free printable 12-month lease agreement template. Create a solid foundation for your landlord-tenant relationship and enjoy a smooth and worry-free rental experience. Download the template now and start renting with confidence!
Free Printable Commercial Lease Agreement Forms Printable Forms Free
Free Week To Week Weekly Lease Agreement Template Pdf Word Free
Free Blank Lease Agreement Template Of Editable Blank Rental Agreement
Monthly Rental Agreement Forms FREE Printable Printable Lease Agreement





