Looking for a free printable lease agreement in Utah? Look no further! Whether you’re a landlord or tenant, having a solid lease agreement is crucial to protect your rights and responsibilities.
Utah has specific laws and regulations when it comes to rental agreements, so it’s essential to have a legally binding document in place. A free printable lease agreement can help you outline the terms and conditions of the rental agreement easily.
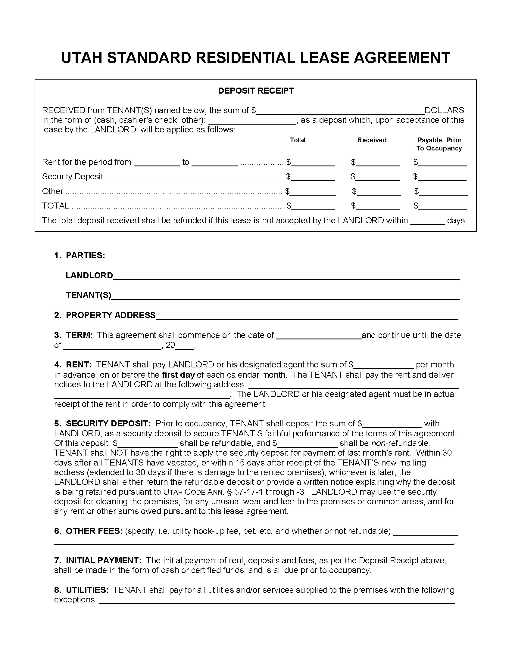
2025 – Free Printable Lease Agreement Utah
Free Printable Lease Agreement Utah
When creating a lease agreement in Utah, make sure to include important details such as the names of the landlord and tenant, the property address, the rental amount, the lease term, and any rules or regulations related to the property.
It’s also essential to include clauses regarding security deposits, maintenance responsibilities, late fees, and eviction procedures. Having these details clearly outlined in the lease agreement can help prevent misunderstandings and conflicts down the road.
By using a free printable lease agreement template specific to Utah, you can ensure that you’re following the state’s laws and regulations. These templates are easy to customize and can save you time and money compared to hiring a lawyer to draft a lease agreement from scratch.
Remember, a well-written lease agreement can protect both landlords and tenants in case of disputes or disagreements. It’s always best to have a written document that clearly outlines the rights and obligations of both parties.
So, if you’re in Utah and in need of a lease agreement, look for a free printable template online to get started. With just a few clicks, you can have a legally binding document that can help protect your interests as a landlord or tenant.
Don’t wait until it’s too late – get your free printable lease agreement for Utah today and ensure a smooth rental experience for everyone involved!
Free Printable Lease Agreement Ny Free Printable
Free Utah Standard Residential Lease Agreement Template PDF WORD
Free Utah Residential Lease Agreement PDF Word doc
Lease Agreement Extension Template





