Are you in need of a free printable Wisconsin residential lease agreement? Look no further! This article will provide you with all the information you need to draft a legally binding document for your rental property.
When it comes to renting out your property, having a solid lease agreement in place is crucial. It protects both you as the landlord and your tenants by outlining the terms and conditions of the rental agreement.
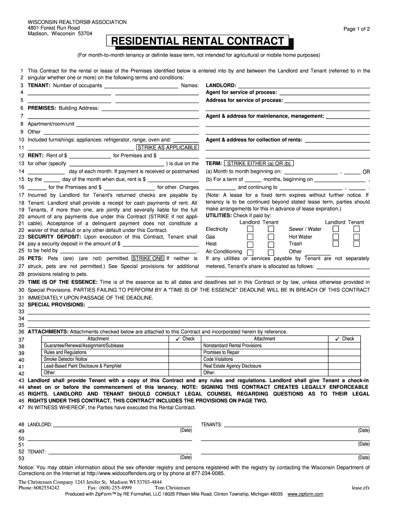
2025 – Free Printable Wisconsin Residential Lease Agreement
Free Printable Wisconsin Residential Lease Agreement
Creating a lease agreement doesn’t have to be a daunting task. With our free printable Wisconsin residential lease agreement template, you can easily customize it to suit your specific needs and requirements.
Our template includes all the essential elements of a lease agreement, such as the names of the landlord and tenant, the rental terms, security deposit details, maintenance responsibilities, and more.
By using our free printable Wisconsin residential lease agreement template, you can ensure that all parties involved are on the same page regarding their rights and obligations throughout the duration of the tenancy.
Don’t let the process of creating a lease agreement overwhelm you. Download our free printable Wisconsin residential lease agreement template today and take the first step towards a successful and smooth rental experience.
With our easy-to-use template, you can save time and effort while ensuring that your rental agreement is comprehensive and legally sound. So why wait? Get your free printable Wisconsin residential lease agreement now!
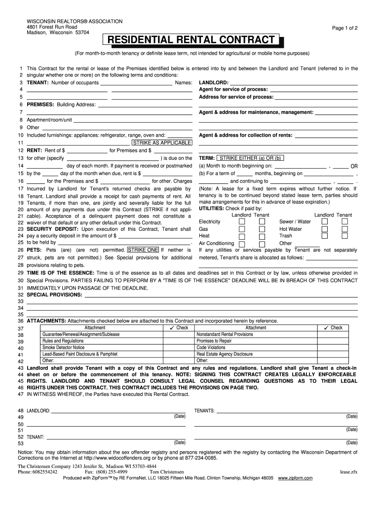
Free Wisconsin Residential Lease Agreement PDF Word doc
Wisconsin Residential Lease Agreement 2020 Fill And Sign Printable
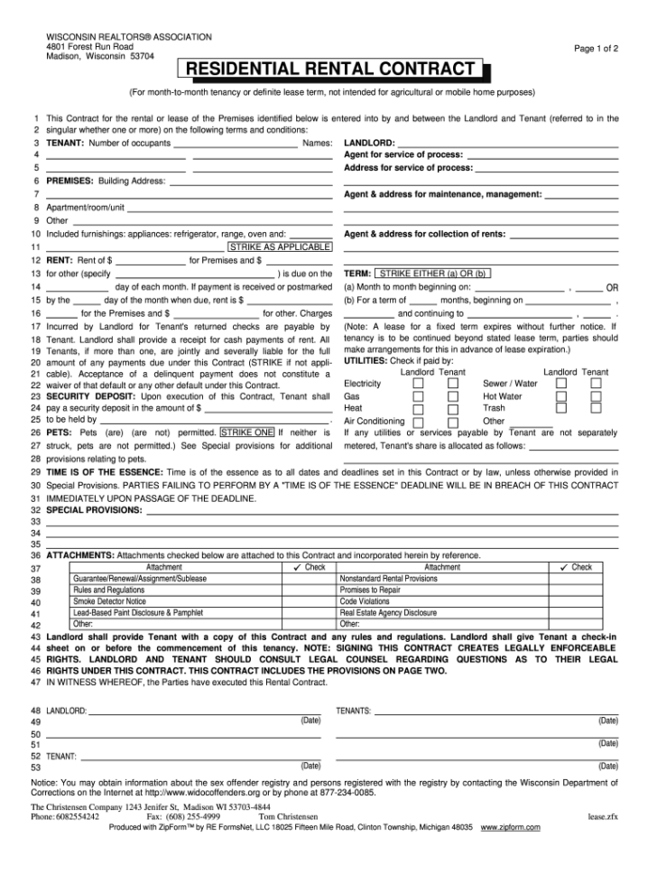
Wisconsin Residential Lease Agreement 2020 Fill And Sign Printable
Wisconsin Standard Residential Lease Agreement Free Download





