Are you looking for a convenient way to access the NPMA 33 Form 2025 printable online? Look no further! In this article, we will guide you on where to find and download this essential document.
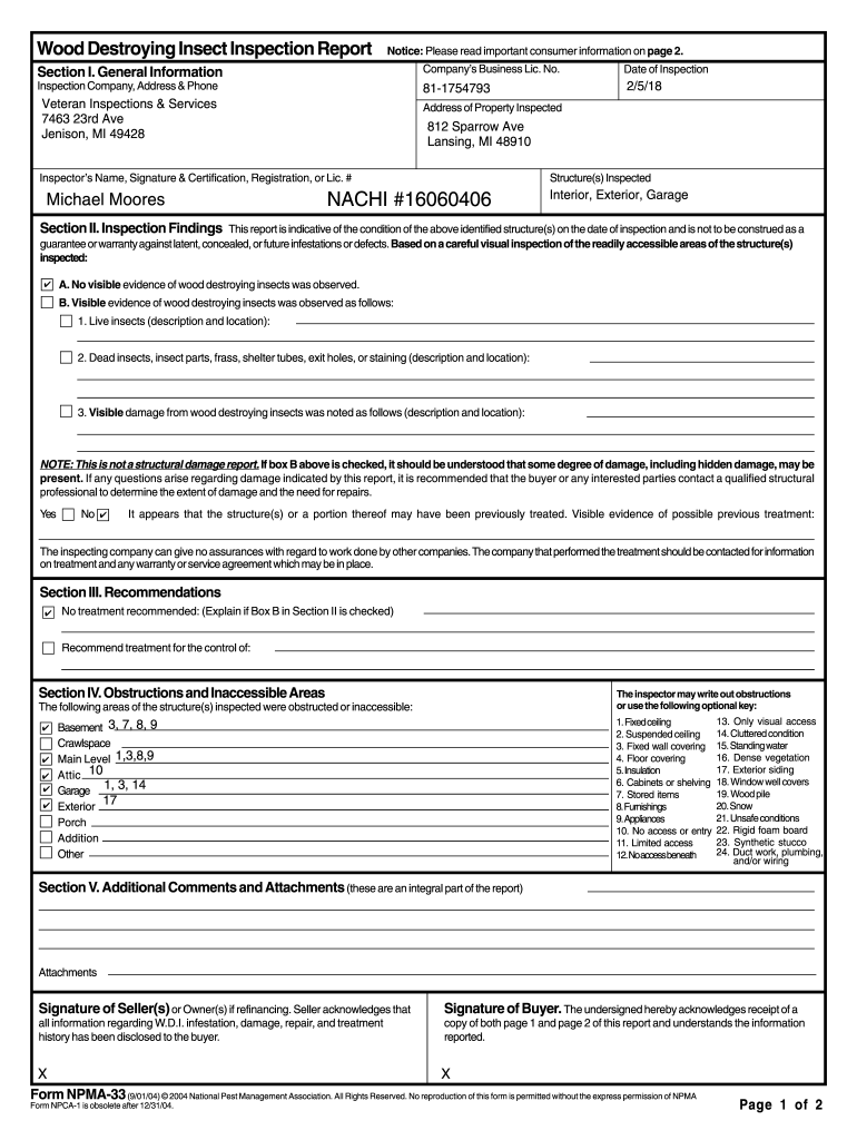
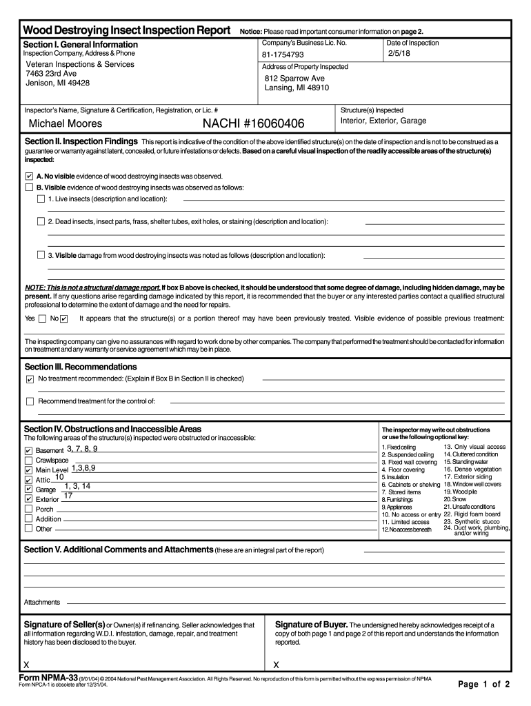
Whether you’re a property manager, pest control professional, or homeowner, having a printable NPMA 33 Form 2025 can save you time and hassle. This form is commonly used to report findings during a wood-destroying insect inspection.
2025 – Npma 33 Form 2025 Printable
Where to Find NPMA 33 Form 2025 Printable
One of the easiest ways to access the NPMA 33 Form 2025 printable is by visiting the official website of the National Pest Management Association (NPMA). They provide a downloadable version of the form that you can fill out and save for your records.
Another option is to search for the NPMA 33 Form 2025 printable on reputable document-sharing websites. These platforms often have a wide range of forms available for free download, making it convenient for users to access and print them as needed.
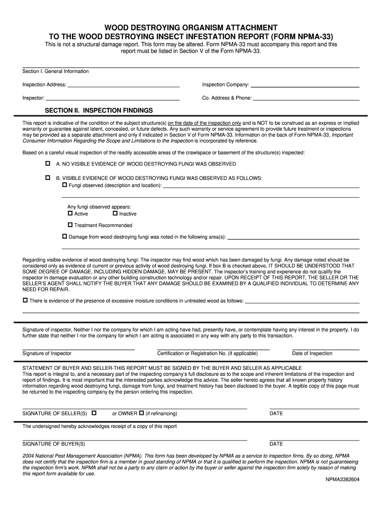
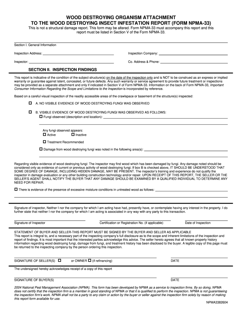
Once you have downloaded the NPMA 33 Form 2025 printable, make sure to fill it out accurately with the required information. This form is crucial for documenting any findings related to wood-destroying insects, so it’s essential to complete it thoroughly and legibly.
Having a printable NPMA 33 Form 2025 on hand can streamline your inspection process and ensure that you have all the necessary documentation in order. By being proactive and prepared, you can easily comply with regulations and protect your property from potential pest threats.
In conclusion, having access to a printable NPMA 33 Form 2025 is a valuable resource for anyone involved in property management or pest control. By following the steps outlined in this article, you can easily obtain and utilize this essential document for your inspection needs.
Npma 33 Fill Out Sign Online DocHub
Npma 33 Fill Online Printable Fillable Blank PDFfiller
Free Npma 33 Form Download Fill Out Sign Online DocHub
Form NPMA 33 Fill Out Sign Online And Download Printable PDF




