Looking for a hassle-free way to lease your property for a short period? You’re in luck! Our Free Printable 6 Month Lease Agreement Form is here to make your life easier. Whether you’re a landlord or a tenant, this form is perfect for your needs.
Forget about the stress of drafting a lease agreement from scratch. With our free printable form, you can quickly and easily outline the terms of your 6-month lease. Simply fill in the blanks with the relevant information, and you’re good to go. It’s that simple!
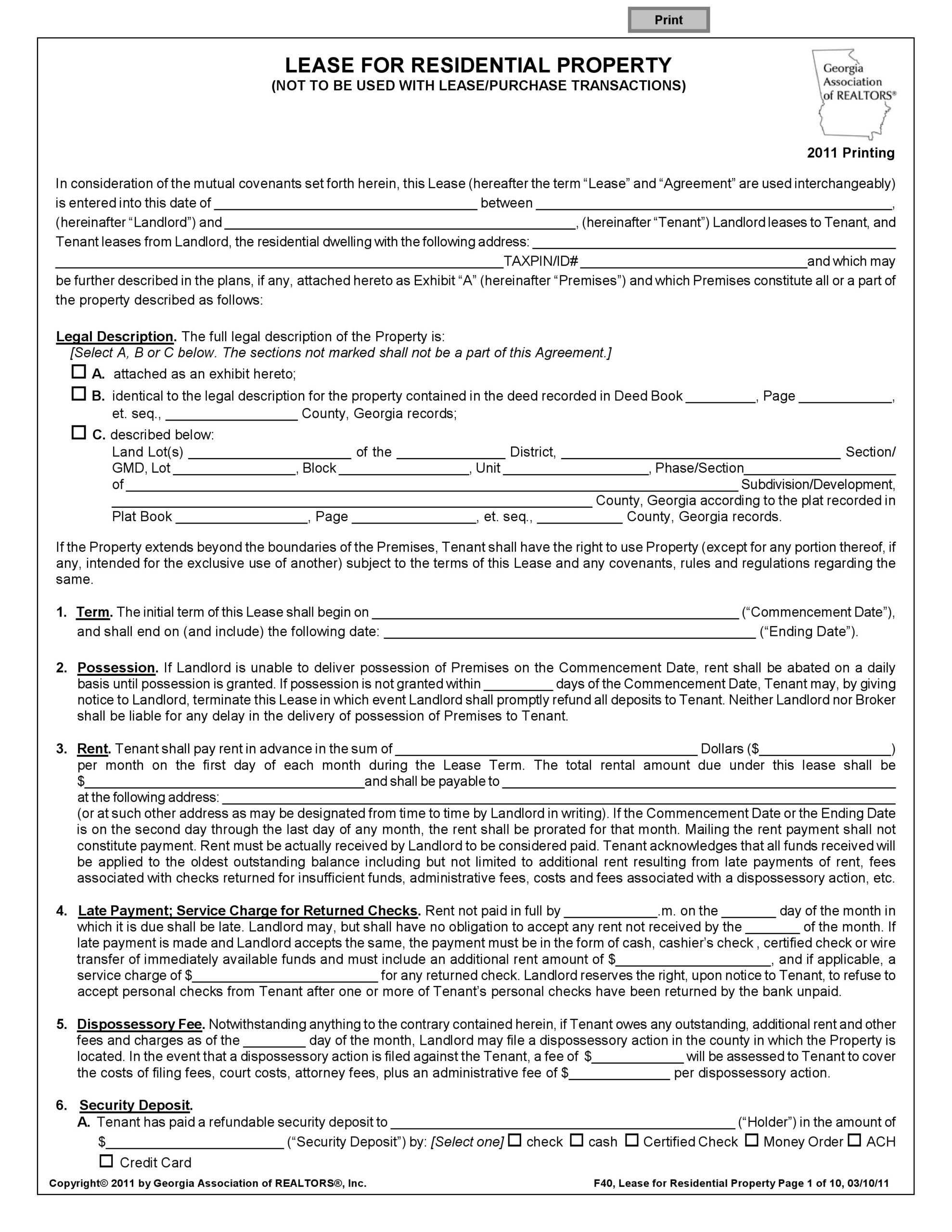
2025 – Free Printable 6 Month Lease Agreement Form
Free Printable 6 Month Lease Agreement Form
Our printable form covers all the essential aspects of a lease agreement, including rent amount, security deposit, maintenance responsibilities, and more. It’s designed to be clear, concise, and easy to understand for both parties involved. No need to worry about complicated legal jargon!
By using our free printable form, you can avoid misunderstandings and disputes down the line. Having a written agreement in place can protect both landlords and tenants and ensure a smooth rental experience for everyone. It’s a win-win situation!
Don’t wait any longer to secure your 6-month lease agreement. Download our free printable form today and take the first step towards a stress-free rental process. Whether you’re renting out your property or looking for a place to call home, this form has got you covered. Happy leasing!
In conclusion, our Free Printable 6 Month Lease Agreement Form is a convenient and reliable tool for both landlords and tenants. Save time and effort by using our ready-made template to outline the terms of your 6-month lease. Download now and enjoy a seamless rental experience!
Florida Residential Lease Agreement Free Printable Form Printable
Monthly Rental Agreement Forms FREE Printable Printable Lease Agreement
Free Printable 6 Month Lease Agreement Form Form Resume Examples
Printable 6 Month Lease Agreement Printable Lease Agreement





