Looking for a free printable 6 month lease agreement template? You’re in luck! Whether you’re a landlord or a tenant, having a written lease agreement is crucial to protect both parties’ rights and responsibilities.
By using a template, you can easily customize the agreement to fit your specific needs. This saves time and ensures that all the important details are included, such as rent amount, security deposit, lease term, and any additional clauses.
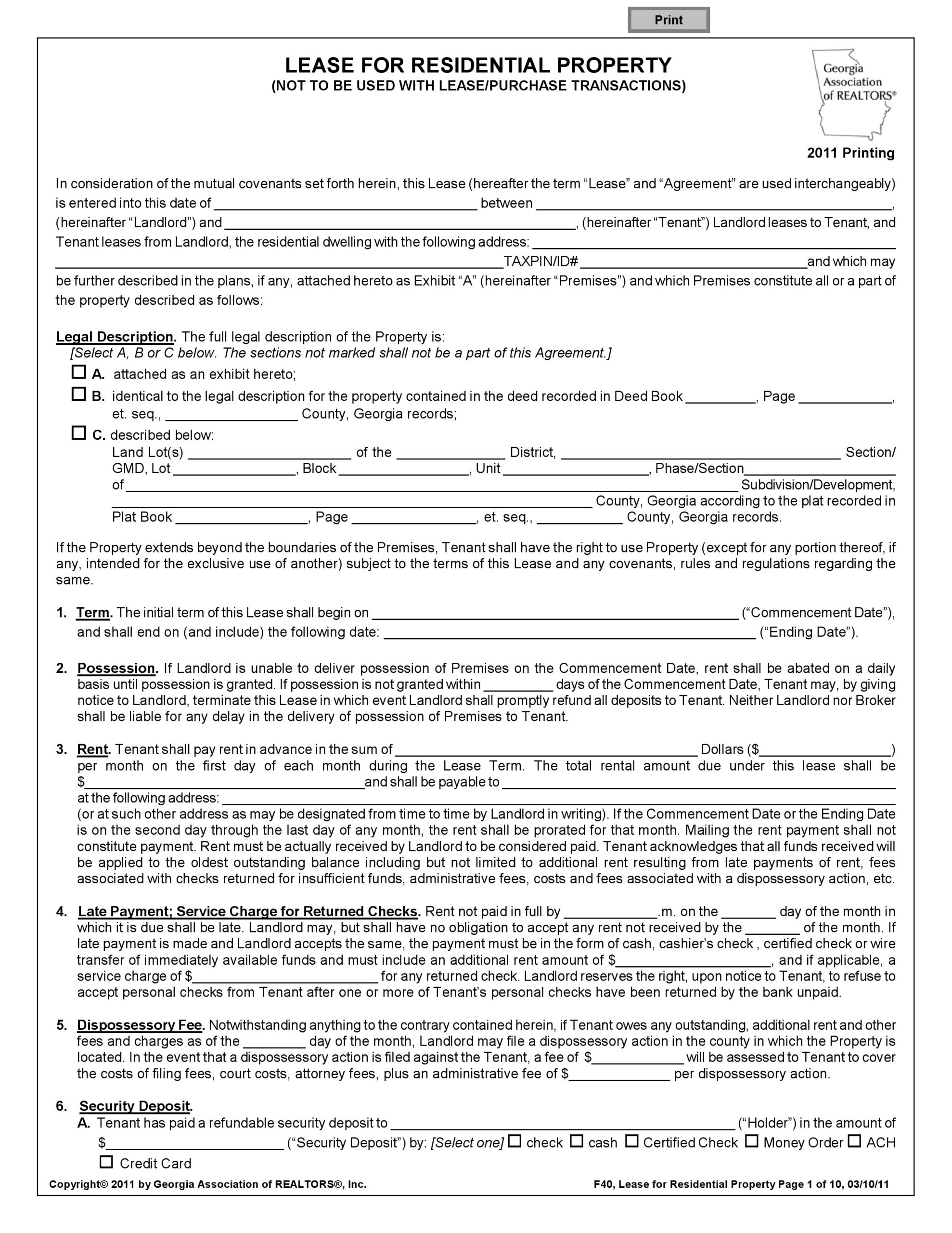
2025 – Free Printable 6 Month Lease Agreement Template
Free Printable 6 Month Lease Agreement Template
One of the benefits of using a free printable 6 month lease agreement template is the convenience it offers. You don’t have to start from scratch or worry about missing any essential terms. Simply fill in the blanks and you’re good to go!
Another advantage is that these templates are often legally reviewed to ensure they comply with state laws. This gives you peace of mind knowing that your lease agreement is valid and enforceable in case any disputes arise.
Whether you’re leasing a residential or commercial property, having a written agreement in place protects both parties and clarifies expectations. It helps prevent misunderstandings and disputes down the line, making the rental process smoother for everyone involved.
So, next time you need a 6 month lease agreement, consider using a free printable template. It’s a simple and effective way to create a legally binding document that outlines the terms of your rental agreement. Just remember to review it carefully and make any necessary adjustments before signing.
6 Month Rental Lease Agreement Template Google Docs Word Apple
21 Printable Lease Agreement Templates Word PDF Pages
Printable 6 Month Lease Agreement Printable Lease Agreement
Month to Month Lease Agreement Template





