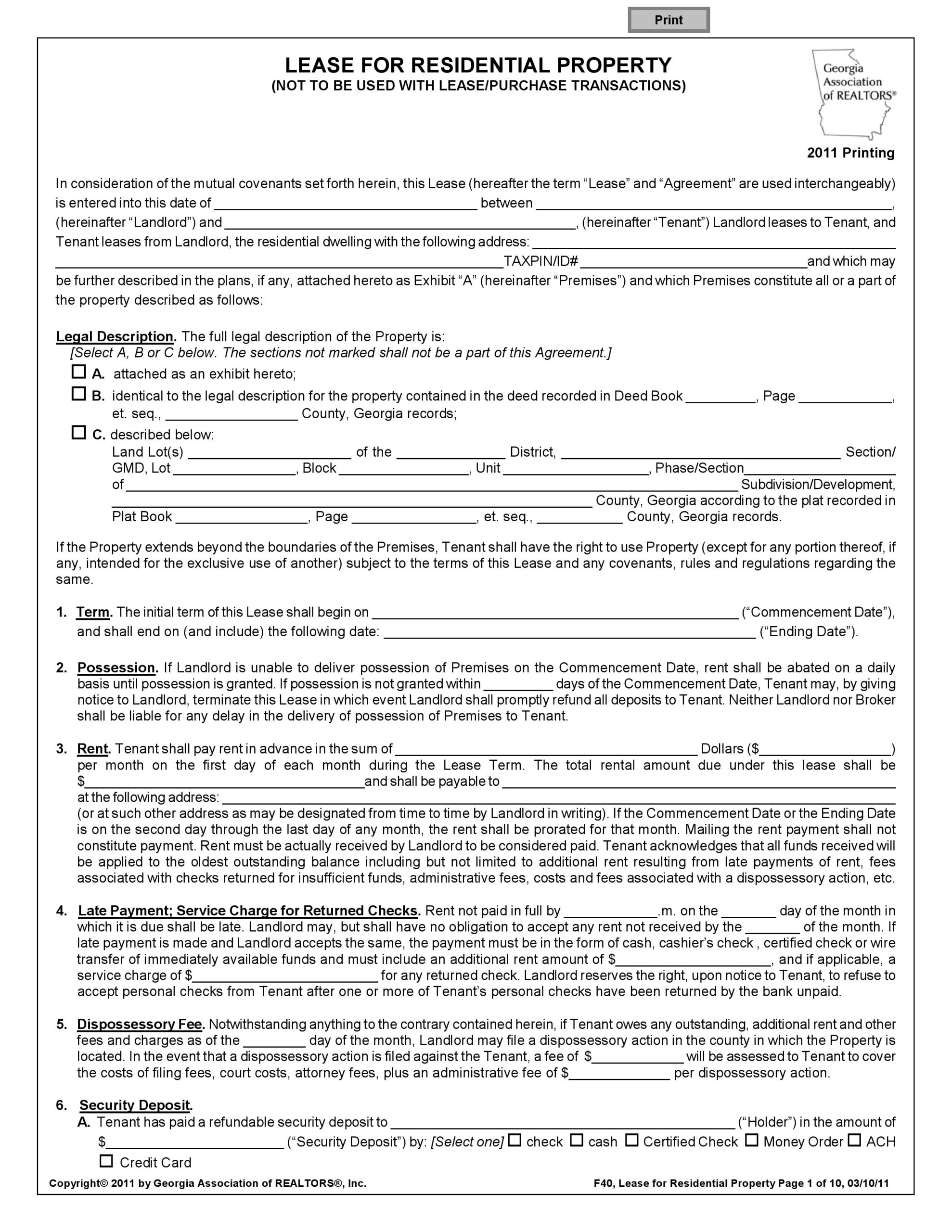
Looking for a free printable 6-month lease agreement? You’ve come to the right place! Whether you’re a landlord renting out a property or a tenant looking to secure a rental, having a written lease agreement is essential for a smooth and hassle-free rental experience.
A lease agreement outlines the terms and conditions of the rental, including the rent amount, security deposit, lease duration, and rules for the property. Having a written agreement helps protect both parties and ensures that everyone is on the same page.
2025 – Free Printable 6 Month Lease Agreement
Free Printable 6 Month Lease Agreement
Creating a lease agreement from scratch can be time-consuming and confusing. That’s why we’ve made it easy for you by providing a free printable 6-month lease agreement template. Simply fill in the necessary information, such as the names of the landlord and tenant, the rental property address, and the terms of the lease.
Our lease agreement template is professionally drafted to cover all the essential aspects of a rental agreement, ensuring that both parties are protected. You can customize the agreement to fit your specific needs and preferences, making it a convenient and stress-free solution for your rental needs.
By using our free printable 6-month lease agreement template, you can save time and effort while ensuring that your rental agreement is legally sound and comprehensive. Whether you’re a first-time landlord or a seasoned property owner, having a written lease agreement is crucial for a successful and harmonious rental arrangement.
So why wait? Download our free printable 6-month lease agreement template today and take the hassle out of creating a rental agreement. With our user-friendly template, you can easily create a professional and detailed lease agreement that meets your specific requirements. Say goodbye to the stress of drafting a lease agreement and enjoy a smooth and worry-free rental experience!
Free Printable 6 Month Lease Agreement Form Form Resume Examples
Free Printable 6 Month Lease Agreement Form Form Resume Examples
Monthly Rental Agreement Forms FREE Printable Printable Lease Agreement
Printable 6 Month Lease Agreement Printable Lease Agreement





