Looking for a simple lease agreement template that you can easily print for free? You’re in luck! Creating a lease agreement doesn’t have to be complicated or expensive. With the right template, you can have a legally binding document in no time.
Whether you’re a landlord renting out a property or a tenant looking to formalize your rental agreement, having a lease in place is essential. A well-written lease agreement protects both parties and sets clear expectations for the rental period.
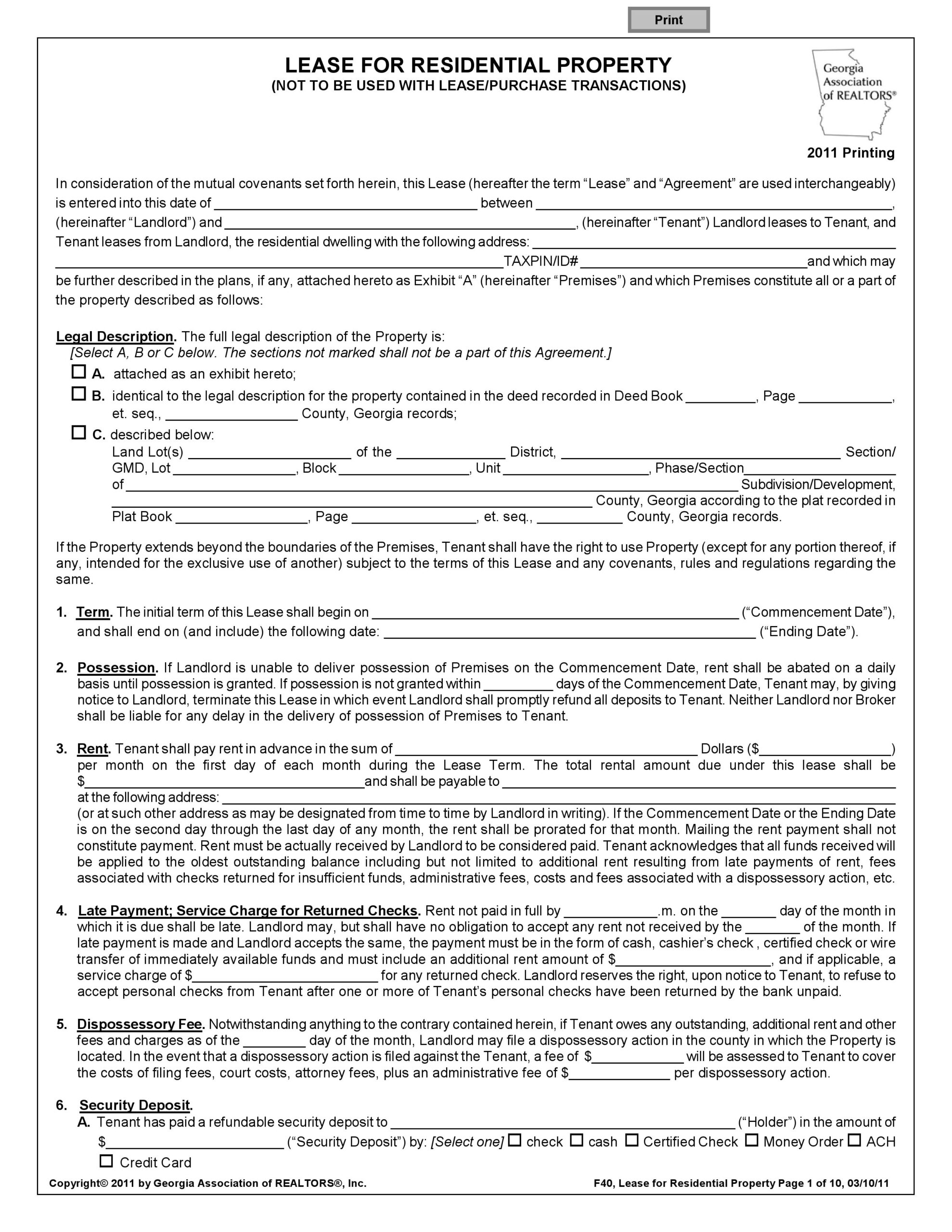
2025 – Simple Lease Agreement Template Free Printable
Simple Lease Agreement Template Free Printable
One of the easiest ways to get started is by using a free printable lease agreement template. These templates are readily available online and can be customized to suit your specific needs. Simply fill in the necessary details, print it out, and you’re ready to go!
When using a template, make sure to include important information such as the names of the landlord and tenant, the rental property address, the term of the lease, the monthly rent amount, and any rules or regulations that both parties must follow.
Having a written lease agreement not only protects your rights as a landlord or tenant but also helps avoid any potential misunderstandings or disputes down the line. It’s a small investment of time that can save you a lot of hassle in the future.
So, if you’re in need of a simple lease agreement template that you can print for free, look no further. With the right template, you can create a legally binding document that outlines the terms of your rental agreement and gives you peace of mind.
Lease Agreement Template Agreement Templates Free Word Templates
Lease Agreement Template
Free Week To Week Weekly Lease Agreement Template Pdf Word Free
Printable Simple Lease Agreement Template Printables Template Free





