Looking for a free printable rental lease agreement template? You’ve come to the right place! Whether you’re a landlord or a tenant, having a written lease agreement is crucial to protect both parties’ rights and responsibilities.
Having a clearly outlined agreement can help prevent misunderstandings and disputes down the road. It’s always best to have everything in writing to avoid any potential issues in the future. With our free printable rental lease agreement template, you can easily customize it to suit your specific needs.
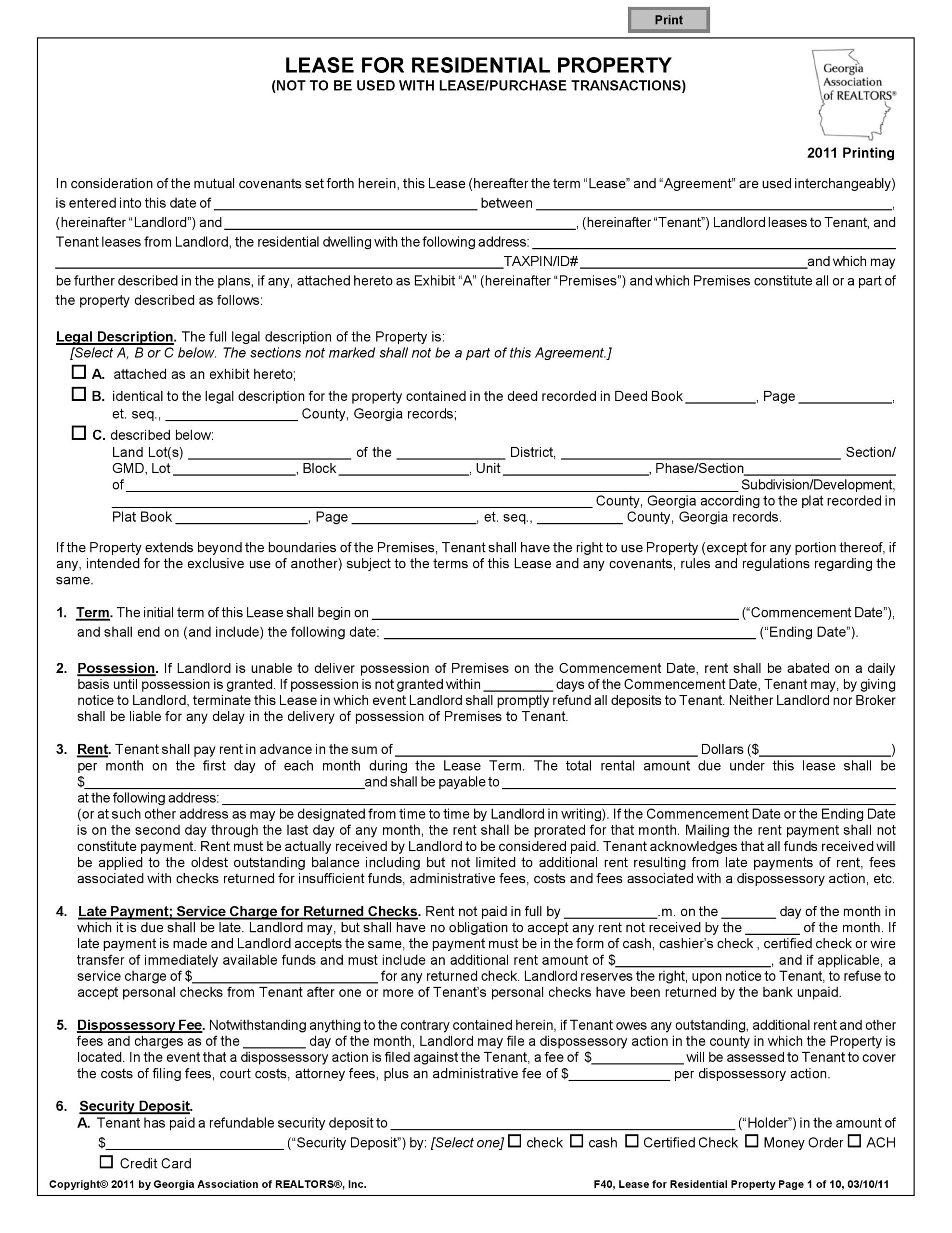
2025 – Free Printable Rental Lease Agreement Template
Free Printable Rental Lease Agreement Template
Our free printable rental lease agreement template is easy to use and can be downloaded and printed in just a few minutes. Simply fill in the required details, such as the names of the landlord and tenant, the rental amount, lease term, and any additional terms or conditions.
Having a written lease agreement can provide peace of mind for both landlords and tenants. It clearly outlines the terms of the rental agreement, such as the duration of the lease, rent amount, security deposit, and any other important details. This can help prevent any misunderstandings or disputes that may arise during the tenancy.
Whether you’re renting out a property or looking to rent a place, having a well-drafted lease agreement is essential. Our free printable rental lease agreement template can help you create a legally binding document that protects your interests and ensures a smooth rental process.
Don’t wait until it’s too late to get a written lease agreement in place. Download our free printable rental lease agreement template today and take the first step towards a successful and stress-free tenancy.
Free Lease Purchase Agreement Template Of Free Copy Rental Lease
Free Week To Week Weekly Lease Agreement Template Pdf Word Free
Free Lease Purchase Agreement Template Of 6 Free Printable Rental Lease
Room Rental Agreement Form Template Free To Use





